John Deere 1158 Forwarder Repair Technical Manual – TM1953
Model: 1158 Forwarder
Publication: TM1953
Type: Forwarder
Language: English
Format: PDF
- John Deere 1158 Forwarder Repair Technical Manual – 646 Pages
Table of Content
SECTION 00—General Information
Group 0001—Safety Information
Group 0002—General Specifications
Group 0003—Torque Values
Group 0004—Fuels and Lubricants
Group 0005—Inspection and Procedure
SECTION 01—Wheels
Group 0100—Removal and Installation
Group 0110—Powered Wheels and Fastenings
Group 0112—Tires
SECTION 02—Axles
Group 0200—Removal and Installation
Group 0225—Drive Shafts
Group 0240—Axle Oil
Group 0241—Brakes
SECTION 03—Hydrostatic Drive System
Group 0360—Hydrostatic Drive System
Group 0361—Hydrostatic Drive Pump
Group 0362—Hydrostatic Drive Motor
SECTION 04—Engine
Group 0400—Removal and Installation
Group 0407—Engine Oiling System
SECTION 05—Engine Auxiliary Systems
Group 0500—Removal and Installation
Group 0505—Cold Weather Starting Aids
Group 0510—Cooling System
Group 0511—Radiator and Oil Cooler
Group 0515—Engine Speed Controls
Group 0520—Air Intake System
Group 0521—Air Cleaner and Piping
Group 0530—Exhaust System
Group 0531—Muffler and Exhaust Pipes
Group 0540—Engine Mounts
Group 0560—Fuel System
Group 0563—Fuel Lines Inspection and Replacement
Group 0564—Fuel Tank
Group 0574—Engine Wiring Harness
SECTION 08—Transfer Case
Group 0800—Removal and Installation
SECTION 09—Steering System
Group 0900—Removal and Installation
SECTION 10—Service Brakes
Group 1060—Service Brake Hydraulic System
Group 1064—Brake Accumulators Removal and Installation
SECTION 11—Parking Brakes
Group 1160—Parking Brake Hydraulic System
SECTION 16—Electrical
Group 1671—Batteries
Group 1672—Alternator
Group 1674—Wiring Harness
Group 1676—Instruments And Indicators
Group 1677—Motors and Actuators
SECTION 17—Frames
Group 1740—Frame Installation
Group 1743—Frame Hinge
SECTION 18—Cab
Group 1800—Removal and Installation
Group 1810—Operator Enclosure
Group 1814—Windows
Group 1821—Seat
Group 1830—Heating and Air Conditioning
SECTION 21—Hydraulic System
Group 2160—Hydraulic System
Group 2161—Work Pump
Group 2162—Control Valves
Group 2163—Lines and Hoses
Group 2164—Hydraulic Reservoir, Filters and Cooler
Group 2165—Hydraulic Cylinders
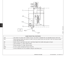
SECTION 31—Loader
Group 3100—Removal and Installation
Group 3143—Booms
Group 3145—Grapple Link
Group 3163—Hose Routings
Group 3165—Loader Cylinders














