John Deere 777, 797 Max-Frame ZTrak Mower Repair Manual
This TM2077 manual is written for an experienced technician. Essential tools required in performing certain service work are identified in this manual and are recommended for use. Live with safety: Read the safety messages in the introduction of this manual and the cautions presented throughout the text of the manual.
Model Covered : Mower ZTrak 777, 797
Serial Applicable: (040001 – )
Publication Reference: TM2077
Language: English
Format: PDF
- John Deere 777, 797 Max-Frame ZTrak Mower Repair Manual – 428 Pages
John Deere 777, 797 ZTrak Mower Manual Table of Content:
- Safety
- Specifications and Information
- Engine
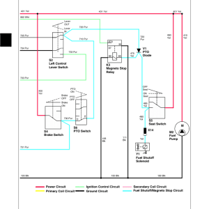
- Electrical
- Hydrostatic Power Train
- Brakes
- Attachments
- Miscellaneous
John Deere 777, 797 Max-Frame ZTrak Mower Repair Manual
This TM2077 manual is written for an experienced technician. Essential tools required in performing certain service work are identified in this manual and are recommended for use. Live with safety: Read the safety messages in the introduction of this manual and the cautions presented throughout the text of the manual.
Information is organized in groups for the various components requiring service instruction. At the beginning of each group are summary listings of all applicable essential tools, service equipment and tools, other materials needed to do the job, service
parts kits, specifications, wear tolerances, and torque values.
Technical Manuals are concise guides for specific machines. They are on-the-job guides containing only
the vital information needed for diagnosis, analysis, testing, and repair.
Fundamental service information is available from other sources covering basic theory of operation, fundamentals of troubleshooting, general maintenance, and basic type of failures and their causes.














