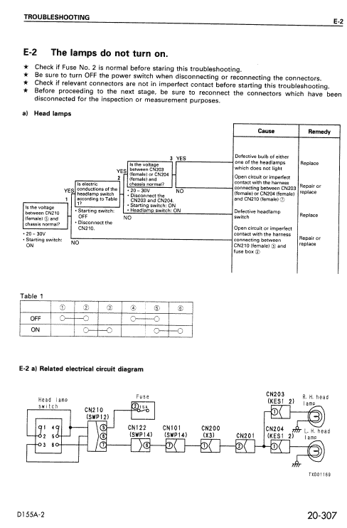
Komatsu D155a-2 Dozer Bulldozer Service Repair PDF Manual
Komatsu: Cat Excavator Service Repair
This Is The highly detailed factory service repair manual for die Komatsu D155a-2 Dozer Bulldozer hydraulic excavators, this Service Manual detailed illustrations hat well as step-by-step instructions, it is Completely 100 percent and intact. They are specifically written for cave do-it-yourself-er, as also the experienced mechanic.
Komatsu PC200LC-7L PC220LC-7L provides hydraulic excavator service repair workshop manual step-by-step instructions, based on the complete disassembly of the machine. It IS of this level of detail, along with hundreds of photos and illustrations, instructions, readers THROUGH die cavity die each service and repair procedure.
Komatsu D155a-2 Dozer Bulldozer Service Repair Manual
Models and serial numbers cover:
Komatsu D155A-2 Dozer Bulldozer S/N 57001 and up
Service Repair Manual Covers:
Introduction
security
operation
maintenance
Specifications
Options, Attachments
And more …
File Format: PDF
Compatible: All versions of Windows and Mac
Language: English
Requirements: Adobe PDF Reader & WinZip
The complete download comes in PDF format, die works under all PC-based Windows operating systems and Mac can all pages printable Sindh. Using of this repair manual is an inexpensive way to Does your vehicle properly.

Komatsu D155a-2 Dozer Bulldozer Factory Service Repair PDF Manual
Engine Specifications: Komatsu d155a-2 Repair manual PDF
| Feature | Specification |
|---|---|
| Engine | |
| Aspiration | Turbocharged |
| Displacement | 1,175 cu in (19,261 cu cm) |
| Engine Model | S6D155-4 |
| Gross Power | 320 hp (239 kw) |
| Max Torque | 1,040 lbs ft (1,410 nm) |
| Number of Cylinders | 6 |
| Power Measured | @2000 rpm |
| Torque Measured | @1400 rpm |














